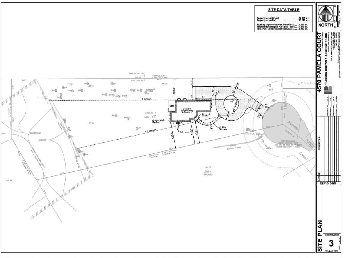
Exceptional opportunity to own a 1.7-acre lot in a private, gated community in Long Grove. This premium homesite is located on a quiet cul-de-sac and backs to a scenic pond, offering unmatched privacy, security, and natural surroundings. Full architectural drawings, engineering plans, tree survey, and set plans have already been completed and HOA-approved. The proposed design includes a 5,019 sq ft custom luxury home with 4 bedrooms, 4.1 bathrooms, and a finished basement-offering over 7,000 sq ft of total living space. The layout features open-concept living, spa-inspired bathrooms, and premium finishes throughout. A full 3D walkthrough is also available. The site is shovel-ready, and buyers have the option to build with the approved builder or bring their own-no builder tie-in required. Located in a top-rated school district and close to parks, golf courses, and boutique shopping. Plans and architectural documents are available under “Additional Remarks.” A rare opportunity to build your dream estate in one of Long Grove’s most exclusive communities.
Property Details
Price:
$225,000
MLS #:
MRD12422160
Status:
Active
Beds:
0
Baths:
0
Type:
Land
Neighborhood:
hawthornwoodslakezurichkildeerlonggro
Listed Date:
Jul 16, 2025
Schools
School District:
125
High School:
Adlai E Stevenson High School
Interior
Exterior
Financial
Tax Year
2023
Taxes
$8,853
Listing Agent & Office
Nedal Kawash
Kawash Group
See this Listing
Mortgage Calculator
Map
Similar Listings Nearby

4570 Pamela Court
Long Grove, IL


Recent Comments