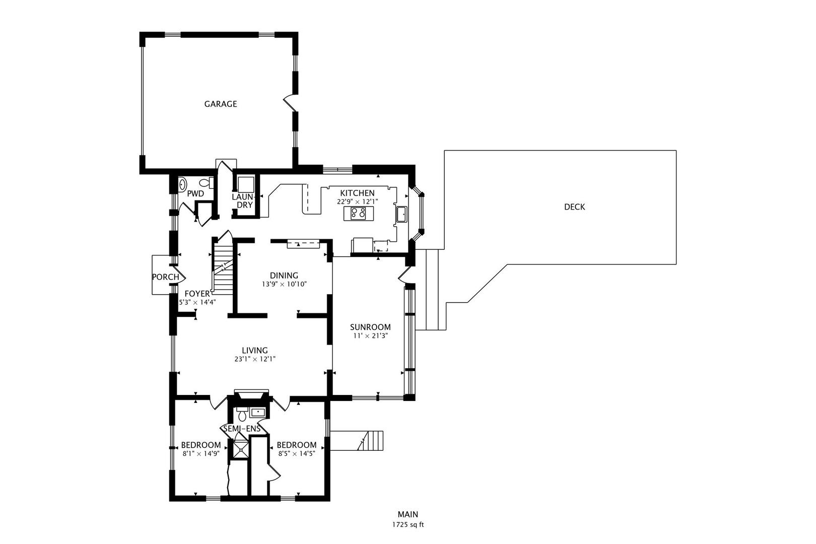
Stunning Fox River Waterfront living! Nothing to do but unpack and enjoy endless summer fun and year-round river views. This beautiful home has been updated from top to bottom, featuring new/refurbished flooring throughout, new windows in sunroom/upper bedroom, new doors, new appliances, custom lighting, all new paint and so much more. The extra-large kitchen boasts unparalleled water views, abundant custom cabinetry, granite countertops galore, and a generous breakfast bar, perfect for everyday living and entertaining. A charming peek-a-boo window connects the kitchen to the centrally located dining room, which flows seamlessly into the inviting family room featuring custom arched doorways and a cozy fireplace. Two spacious first-floor bedrooms connect Jack-and-Jill style through a beautifully remodeled full bath. Relax year-round in the spectacular sunroom, showcasing a wall of floor-to-ceiling windows framing stunning river views and radiant heated floors. Step directly outside to the magnificent deck, lush yard, and exceptional outdoor living space, an entertainer’s dream. A newly remodeled vintage powder room and first-floor laundry area complete the main level. Upstairs, the expansive primary suite is a private retreat offering serene river views, direct access to a fabulous rooftop deck, a brand-new sitting room, and a large custom walk-in closet. An additional generously sized bedroom enjoys the same spectacular views and deck access. A finished third-floor attic with pull-down stair access provides versatile space, ideal for a home gym, yoga studio, or additional storage. This truly one-of-a-kind property also features an outdoor sauna, storage shed for all your water toys, a built-in gated waterfront fence, and private stair access leading directly to your own river pad. A rarely available gem, this historic home is ideally located in Algonquin’s charming historic district, just steps from downtown dining, shopping, coffee/ice cream shops, and the Prairie Trail Path. Offering the perfect blend of comfort and style, enjoy peaceful waterfront serenity with the ease and convenience of walkable town living. A truly rare opportunity to own a move-in-ready waterfront retreat in the heart of it all!
Property Details
Price:
$675,000
MLS #:
MRD12550956
Status:
Active
Beds:
4
Baths:
3
Type:
Single Family
Neighborhood:
algonquin
Listed Date:
Jan 20, 2026
Finished Sq Ft:
2,268
Year Built:
1895
Schools
School District:
300
Elementary School:
Eastview Elementary School
Middle School:
Algonquin Middle School
High School:
Dundee-Crown High School
Interior
Appliances
Dishwasher, High End Refrigerator, Washer, Dryer, Cooktop, Oven
Bathrooms
2 Full Bathrooms, 1 Half Bathroom
Cooling
Central Air
Fireplaces Total
1
Flooring
Hardwood
Heating
Natural Gas, Radiant Floor
Laundry Features
Main Level, Gas Dryer Hookup, Laundry Closet
Exterior
Architectural Style
Colonial
Community Features
Water Rights, Curbs, Sidewalks, Street Lights, Street Paved
Construction Materials
Cedar
Exterior Features
Balcony, Roof Deck, Fire Pit, Lighting
Other Structures
Other, Shed(s)
Parking Features
Asphalt, Garage Door Opener, Yes, Garage Owned, Attached, Garage
Parking Spots
2
Roof
Asphalt
Financial
HOA Frequency
Not Applicable
HOA Includes
None
Tax Year
2024
Taxes
$10,492
Listing Agent & Office
Colleen Stevens
@properties Christie’s International Real Estate
See this Listing
Mortgage Calculator
Map
Similar Listings Nearby

407 La Fox River Drive
Algonquin, IL































































Recent Comments